Byt 2+kk/B, 50m2 + 4m2, Rakovník

Prodáno 20312
Zpět na výsledek nabídek
Cena:
2 540 000 Kč
Typ zakázky:
Prodej
Lokalita:
Zátiší, Rakovník
Dispozice:
2+kk
Plocha:
50 m2
Evidenční číslo:
20312
Kateřina Hocková

Kateřina Hocková

Mobil:+420 606 458 821

Podrobné informace

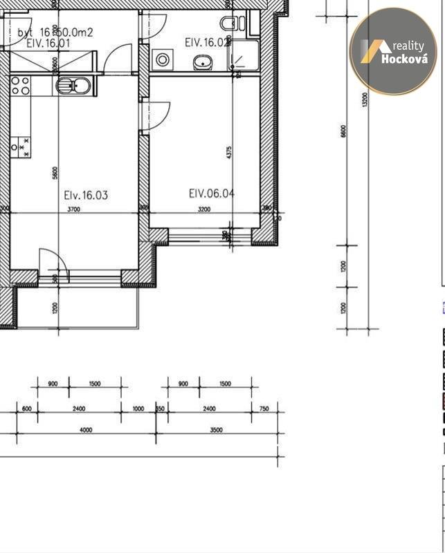
Nabízíme vám k prodeji byt D32-č.16 o velikosti 2+kk/B, 50m2 + 4m2 z developerského projektu Zátiší. Byt se bude nacházet ve 4NP v bytovém domě s výtahem. Tento byt je již z BLOKU D, u kterého je předpoklad výstavby 2/2021 a dokončení do 8/2022, výstavba bude probíhat 18 měsíců. Nyní je možné stále ovlivnit vzhled interiéru tohoto bytu. Klient si může zvolit libovolnou podlahovou krytinu, obklady, sanitární techniku, ale i příčky, které nejsou nosné. V současné době je již možná rezervace, která je ve výši 50 000,- Kč a je součástí kupní ceny. Byt přejde do vašeho osobního vlastnictví! K bytu je možné koupit i garáž.
Bytový dům se bude nacházet ve velmi klidné a atraktivní oblasti. Toto místo je velice vhodné pro rodiny s dětmi, jelikož jsou v sousedství tři základní školy, nedaleko také mateřské školy, knihovna, sportoviště a samozřejmě pošta, nemocnice atd. Přibližně 1km od Zátiší je k dispozici hypermarket Albert a cca za 15 min je možné dojit až na náměstí. Z Rakovníka je velmi dobrá dostupnost do Prahy (cca 50 km), která je zabezpečená autobusovými linkami v intervalech 30 min. Autobusová zastávka se nachází asi 200 m od bytového domu. Dostupnost po městě je zajištěná MHD. V Rakovníku je mnoho pracovních příležitosti.
Pokud Vás zajímají další informace například - jak probíhá financování? Co je součástí standardu, atd.? Prosím, kontaktujte nás.
Přehled tohoto developerského projektu je možné vidět na našich stránkách v sekci Developerské projekty – Byty Zátiší v Rakovníku.

Typ nemovitosti:
Byt
Dispozice:
2+kk
Podlahová plocha:
50 m2
Užitná plocha:
50 m2
Konstrukce budovy:
Cihla
Typ vlastnictví:
Osobní
Stav nemovitosti:
Projekt
Patro:
5. patro
Výtah:
Ano
Terasa:
Ne
Balkón:
Ano
Lodžie:
Ne
Sklep:
Ano
Možno hypotéka:
Ano
Energetická náročnost budovy:
B - Velmi úsporná
photo_1
Tato nabídka je součástí developerského projektu
BYTY ZÁTIŠÍ V RAKOVNÍKU BLOK D