ŘRD (VNITŘNÍ) 4+KK, 117M2 , PARCELA 249M2 V OBCI KOSOŘICE U MLADÉ BOLESLAVI

Prodáno 17304
Zpět na výsledek nabídek
Cena:
2 323 500 Kč
Typ zakázky:
Prodej
Lokalita:
Kosořice
Plocha:
117 m2
Evidenční číslo:
17304
Kateřina Hocková

Kateřina Hocková

Mobil:+420 606 458 821

Podrobné informace

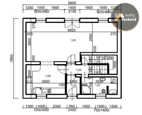
Řadový rodinný dům o dispozici 4+kk (možné i jiné řešení dispozicí dle Vašich požadavků). Obec Kosořice je vzdálená 15km od Mladé Boleslavi. Dům č. 12 je středový s parcelou 249m2. Domy se prodávají ve stadiu holodomu tzn. bez vnitřních stavebních úprav s možností dokončení od developera nebo svépomocí. Přízemí: vstupní chodba, kuchyně, prostorný obývací pokoj se vstupem na zahradu, dále koupelna s WC a technická místnost. 1NP: 3 pokoje, koupelna s vanou, samostatné WC. PENB třídy B. Nabízíme možnost zprostředkování hypotečního úvěru.

Typ nemovitosti:
Dům
Podtyp nemovitosti:
Řadový
Užitná plocha:
117 m2
Plocha parcely:
249 m2
Zastavěná plocha:
75 m2
Konstrukce budovy:
Cihla
Stav nemovitosti:
Výstavba
Výtah:
Ne
Terasa:
Ne
Balkón:
Ne
Lodžie:
Ne
Sklep:
Ne
Možno hypotéka:
Ano
Kanalizace:
Městská
Rok výstavby:
2017
Energetická náročnost budovy:
B - Velmi úsporná